Architectural & Structural Design Consultancy (2D & 3D Planning)
We provide comprehensive architectural and structural design solutions, including detailed 2D drawings and realistic 3D visualizations. Our designs focus on functionality, safety, aesthetics, and compliance with applicable building codes and standards.
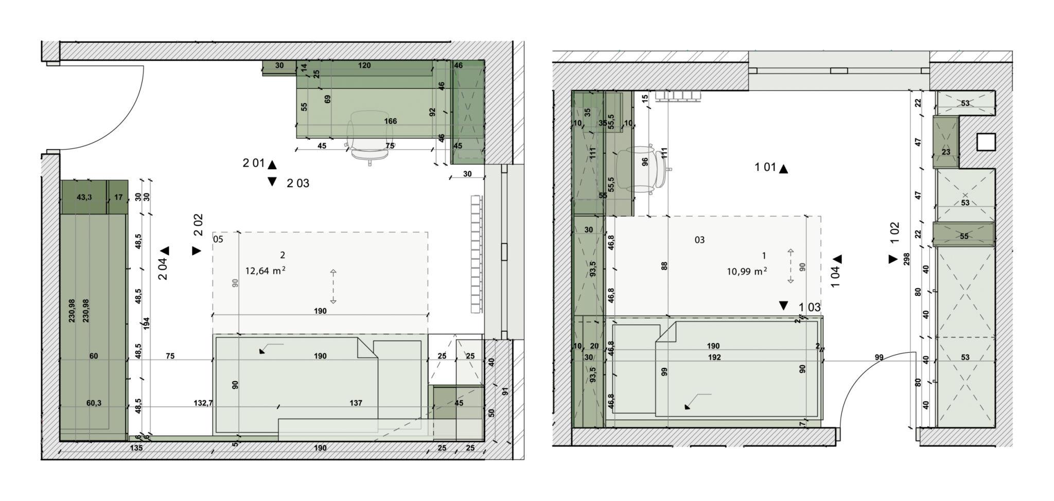
Interior Design Consultancy
Our interior design services deliver creative and practical space planning solutions that enhance comfort, efficiency, and visual appeal. We ensure optimal use of space while aligning designs with client preferences, budget, and project requirements.
Engineering Design & Technology Services
We offer advanced engineering design and technology-driven solutions for residential, commercial, and institutional projects. Our services emphasize innovation, accuracy, sustainability, and cost-effectiveness.
Contract Management Services (CMS)
Our Contract Management Services ensure effective administration of contracts throughout the project lifecycle. We assist in documentation, compliance, risk mitigation, cost control, and timely resolution of contractual issues.
Project Management Consultancy (PMC)
We provide end-to-end project management consultancy to ensure projects are completed on time, within budget, and to the desired quality standards. Our PMC services cover planning, coordination, monitoring, and stakeholder management.
Detailed Project Report (DPR) Preparation
We prepare comprehensive Detailed Project Reports (DPRs) that include technical feasibility, cost estimates, timelines, and risk assessments. DPRs are developed to support approvals, funding, and informed decision-making.
Contractor Supervision Consultancy (CSC)
Our Contractor Supervision Consultancy ensures that construction activities are executed as per approved drawings, specifications, and quality standards. We monitor progress, workmanship, and site compliance to achieve successful project delivery.
Design Supervision Consultancy (DSC)
We offer Design Supervision Consultancy to ensure that the executed work strictly adheres to approved designs and technical specifications. This service helps maintain design integrity, quality assurance, and regulatory compliance throughout construction.